The Cooper Union
JM Goldsmiths
Contact
Jasper Meikle
The Cooper Union
JM Goldsmiths
Contact
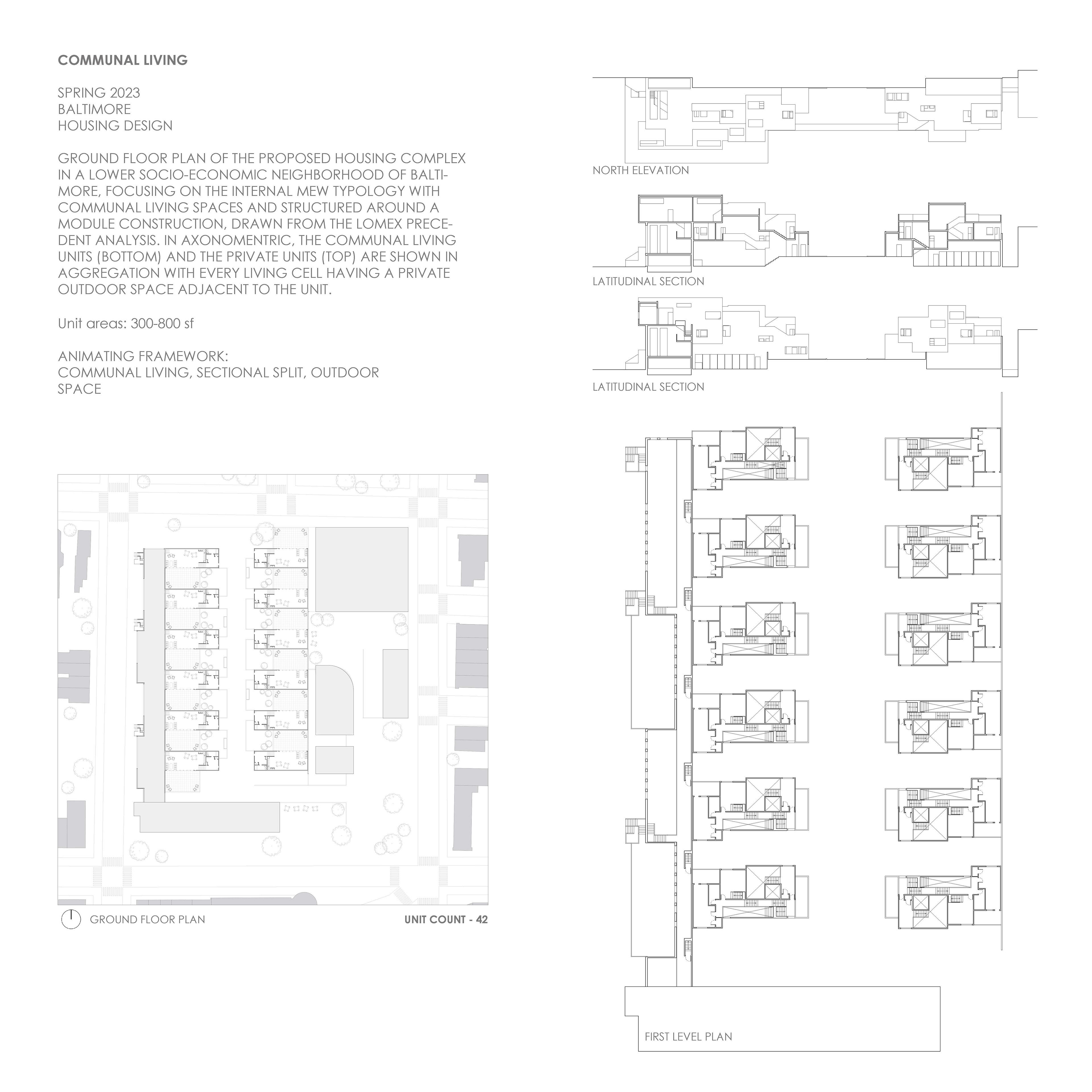
A Kommunalka in Baltimore
Precedent Analysis
: Lower Manhattan Expressway:
↑
Back to Top